The James A. Thornton house was located at the end of Carlton Street on the southeast side of Union Point in Greene County, Georgia. Situated about 1,000 feet north of the railroad crossing that terminates the street, the house faced almost due south. In the spring and summer of 1997, the house was dismantled for reconstruction with alterations in Highlands, North Carolina. His parents’ house (ca. 1790), also near Union Point, was itself moved in the late 1960s, first to the Art Association in Atlanta and then for final reconstruction in Stone Mountain Park. Because the interiors had been mostly dismantled when the present investigation was conducted, conclusions regarding the building’s evolution were mostly drawn from the variations in the framing and other materials that could be observed.
|
Figure 1. The James A. Thornton House as seen from the southwest. Unless otherwise credited, all photographs of the house were taken by the author in late spring and summer of 1997. |
The present house has been traditionally attributed to James A. Thornton (1803–1878), the eldest of three sons of Thomas Redmon Thornton (1769–1826) and his wife Sarah Craig. One of James’ brothers was Vincent Redmon Thornton (1805–1856), the noted Baptist minister buried at Bethesda Baptist Church.
|
Figure 2. USGS map, showing Union Point, Greene County, Georgia, annotated with an arrow indicating site of the James A. Thornton House.. |
|
Figure 3. The house that Thomas Redmon Thornton, father of James A. Thornton, built about 1790, on its original site near Union Point. (Historic American Buildings Survey) |
|
Figure 4. The James A. Thornton house, looking north, May 1997. |
James and Sarah Thornton married about 1824, and their first child, William, was born in 1825. At least five more children—Martha, Jesse, Vincent, Emmet, James Jr, and Homer—were born before 1860. James’ father died in 1826 and, by the terms of his will, James received “all land south” of the Thornton home-place along with six slaves. The next year, James sold over one hundred acres of that land to James Pollard and, in 1828, he conveyed a 113-acre tract on “the headwaters of Sherrill’s Creek” along the Augusta Road (now U.S. 278) to his mother for $100. This may have been the tract of land on which he built his house. In 1831, James’s mother conveyed the same tract to William Cone, a neighbor, in trust for James’s eldest son William R., who was then only about six years old.
Rice’s History of Greene County, Georgia, states that James was a teacher under Greene County’s “Poor School Fund” between 1825–1838. Thornton also probably taught at, if he did not actually start, the Thornton Academy that was chartered by the Legislature in 1831. In 1838, he was teaching in White Plains, fourteen or so miles southeast of Union Point, where his brother Vincent was pastor of the local Baptist church. Given the distance, he probably lived with his brother in White Plains Point during the week but must have returned to Union Point by 1840.
James (not Joseph, as the original census entry has often been interpreted) Thornton can be identified in the 1850 census of Greene County (#730) with his wife, Sarah, and six children. Seven other children, all sixteen years of age or younger were also listed with James Thornton’s family in that census. Some or all of these additional children may have been students of Thornton, whose occupation was listed in the census as “teacher.” Fifteen people apparently occupied the house that year. He was also listed in the census schedules for Greene County in 1860 and 1870, but none after that. His grave has not been located.
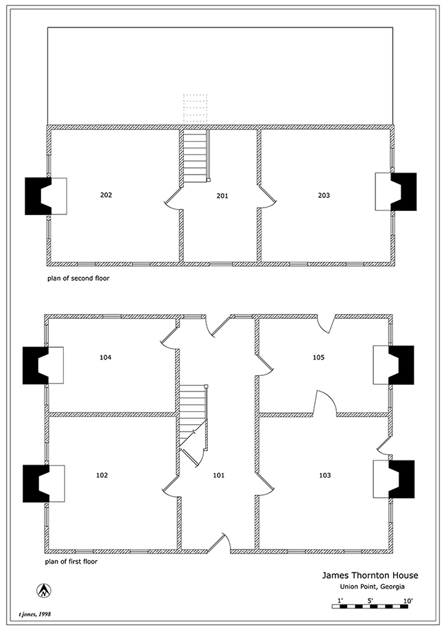
The Thornton House
The Thornton House may have been constructed as early as the mid-1820s, perhaps after the death of James Thornton’s father in 1826. It must have been there in 1834, when he conveyed a 200’-wide strip across the land “whereon said James Thornton now resides” to the Georgia Railroad Company for construction of one of the nation’s earliest railroads. “Thornton’s Crossing,” was soon a local landmark, predating the town of Union Point itself.
|
Figure 5. Front and east end of Thornton House. The log structure in the foreground was probably built in the twentieth century. |
|
Figure 6. Rear and west end of Thornton House. |
|
Figure 7. Rear and west end of Thornton House. |
Built in the plantation-plain style, a variation on the I-house found in the Midwest and elsewhere, the house was two stories high, with end gables, and a range of rooms, perhaps with a small porch, under a shed roof across the rear. Facing south and measuring about 46’-1” east to west and 31’-4” north to south, the main block of the house was two-over-two with a central hall that continued on the first floor between the two rooms at the rear.
Unlike most plantation-plain houses, the Thornton House appears never to have had a front porch. The absence of abandoned mortises in the house’s front sill suggested that there was never a conventional, full-width front porch. There could have been a simple portico with posts set on rocks at ground level sheltering a flight of steps directly from the front door. Or there may have been no shelter at all, as with the National-Register listed Hilsabeck-Richardson House near Madison, Georgia. Extensive rotting of the original sills at the three exterior door openings (all of which themselves appear to be original) did not allow for definitive proof of the nature of steps and landings that might have existed at any of those locations.
The house must have been planned and built as part of a single construction campaign since there are no obvious discontinuities in the foundation, framing, or siding. There are differences in interior finishes, however, that suggest the interior was finished in two phases. When the original construction campaign was completed, the rooms on the first floor had boarded walls and ceilings and doors with—specifically the wall and ceiling boards on the second floor were circular sawn, unlike the sash-sawn lumber used throughout the rest of the house. Doors with hardware and casing were installed, but the boarded walls and ceilings may not have come until later.
These rear rooms (including the rear half of the hall) were part of the original construction but may have been extensively altered after original construction. There must have been rooms across the rear since (a) there was no evidence that the rear of the house was ever sided at the first floor level and (b) the staircase, which appears to be in its original location, runs from the rear rooms to the second floor.
There were major alterations at the rear of the house, probably in the late nineteenth century. Whether this included total or partial reconstruction is not clear, but at some point, the shed roof was reconstructed with a higher pitch by setting new rafters at a point just under the rear eaves of the main block some 36” above its original location. The side-wall framing for the original roof was still visible in the attic, and still defined the original pitch of the shed roof. The reconstruction may have been necessitated by damage to the original structure, perhaps from a kitchen fire or a tree fall. This would help explain the use of log floor joists under the rear rooms and reuse of hewn lumber with empty mortises as sills and top plates in the rear rooms. The higher pitch accomodated windows at each end of the shed-roofed attic, although there is no indication that the space was ever finished.
Foundation
The house was set on twelve brick piers, generally 12” thick and ranging between 4’ and 5’ high. An L-shaped pier was at each outside corner and T-shaped pier where girders met the outside sill. Two cross-shaped piers support the connections under the rear (north side) of the main block.
Figure 12. North wall of cellar. |
The house had four exterior chimneys serving fireplaces in each of the house’s main rooms. The two serving the four fireplaces in the main block were constructed of a very hard, high-fired brick, the color of which ranged from maroon and wine to a dark charcoal color. The brick in the two chimneys at either end of the rear rooms were much softer and more typically orange in hue. The piers and cellar walls appeared to have used a combination of these bricks.
The southwest chimney began from a base about 43” by 67” that corbelled two courses to the shaft which runs straight from the bottom of the sill to about 6” above the second-floor windows. At that point, a double course was set about ½” beyond the sides of the shaft (the face runs straight from sill to top) followed by eight courses that corbel to the chimney shaft. The shoulders of the chimney and the corbelling of the base were probably originally parged. The top of the chimney, which was about 36” wide (4 bricks), probably originally rose at least 12” above the ridge line but the top courses had been lost. The southeast chimney was of similar construction although its base was about 69” wide and its depth had been doubled by the addition of a brick base beneath the hearth.
The rear chimneys, each serving a single fireplace, were slightly smaller, measuring about 38” by 62”, although the northwest chimney base had, like that on the southeast chimney, been widened by the addition of a brick hearth base. The rear chimneys corbelled only one course to the shaft at the sill level. The upper portions of these chimneys had already been removed at the time of this investigation.
Beneath part of the front of the main hall (101) and part of the southeast room (103) a cellar was added, perhaps in conjunction with construction of the rear chimneys. The space measures about 10’-9” by 24’ and had a clay floor that left less than six feet of headroom. There were four square window openings, with nine-light, single-hung sash, all now missing their muntins. Deep wooden shelves lined the west and north walls, which were brick. For reasons that remain unclear, the east wall of the cellar was constructed with vertically-laid boards.
Framing
The house was constructed with a modified braced wood frame, mostly pine but with some oak and chestnut in the rear rooms. The original construction utilized a combination of sash or reciprocating sawn joists, studs, and rafters along with hewn sills and corner posts, all typical of the second quarter of the nineteenth century. Log joists and rafters were also used in parts of the construction.
|
Figure 13. Looking west from under northeast room (105) to hall floor framing. |
|
Figure 14. Looking east from second floor. |
Figure 15. Juncture of ceiling joists, rafters, and top plate, with evidence of wood shingled roofing visible, top center. |
Sills were hewn and between 10” and 12” square. Posts for outside corners were hewn from 12”-square timbers over 19’ long and ran from the sill to the top plate of the second floor. Openings for windows and doors, all of which appear to have been original, were framed with 4” by 6” sawn posts and similarly dimensioned stock was used for wall plates. In the rear rooms, hewn timbers with abandoned mortises from an earlier structure were used for some top plates and window posts. Corner posts were cross-braced at each floor by sawn knee braces that were mortised and pegged to the posts and girder. Studs were sash sawn, typically 2” to 3” by 4”, with the narrower dimension predominating. The joists in the main block of the house were sash sawn and ranged from about 4” by 8” at the first floor to 2½” to 3” by 8” at the second floor. The second floor ceiling joists were about 3” by 9”. Most of the floor joists under the rear addition were whole logs, ranging from 6” to 10” in diameter, with the tops hewn flat.
Sills, girders, and posts were joined by mortise and tenon, typically pegged together. Studs were also mortised into the sills and plates, except for the studs that intersect corner braces, and there nails were used. The roof pitch was about 8-in-15, with rafters also nailed into place without a ridge board. Machine-cut nails, typical of the second quarter of the nineteenth century, were also used for attachment of nearly all siding, wallboards, and trim. Very few wire nails were noted, and they were always associated with more recent repairs or modifications.
Exterior Finishes
All of the siding was sash sawn, approximately 6” wide by ¾” thick, laid with a 5½” to 5⅞” exposure using machine-cut nails. Corners were finished with 1¼” thick boards, 9½“ wide on the north and south sides of the house and 4½“ on the east and west.
Figure 16. Typical exterior woodwork. |
|---|
Exterior doors and windows were cased with plain 1” by 4” casing and header with a very narrow drip edge at the top. Window sills were approximately 6½” wide and 1½” thick. Neither sill nor drip edge extended beyond the edge of the vertical casing. Many of the original nine-over-nine window sash were missing and, in those that survived, few still retained any muntins. No glass remained in any of the sash. Most remaining muntins were uniformly narrow, ⅝” stock. Stiles and rails of were run from 1⅛” stock and were mortised and pegged together. Several wooden window stops remained in place on window jambs.
The house’s boxed eaves were around 10½” deep and mostly intact although badly rotted in places and missing some elements. As with all of the moldings in the house, the exterior moldings appear to be have been run by hand and not machine. As a result, there was considerable variation in actual dimensions and profile, although typical patterns were the carpenter’s aim. The cornice on the rear addition differs somewhat from that on the main house although both have the typical cornice returns on the gable ends. The return at the northeast corner of the rear addition had been lost and some of the original, triangular crown at the top of the fascia has been replaced with a more modern crown molding.
A simple band of triangular molding similar to that on the fascia was set about 6” below the top of each front corner post and was probably used at the rear posts as well.
The house had been painted in the past although only a few remnants of that paint (probably white and probably dating to the nineteenth century) survived in sheltered areas under the eaves. In spite of the lack of paint, most of the exterior siding and trim was in relatively good condition due to the dense, old-growth grain of the quarter-sawn lumber used in construction. The roof was originally wood-shingled and most of the original, open decking remains in place. A wood-shingle roof (most likely not the original) survived on the main roof beneath layers of asphalt roofing. The shed roof was covered with sheet metal roofing.
Interior Finishes
The ceilings at the first floor in the main block were set at 10’ and those at the second floor at 8½’. The ceilings in the two rear rooms were set at 9’-9”. Although the interior had already been mostly stripped when the present investigation was conducted, a few of the original tongue-and-groove wall and ceiling boards, 11” to 12” wide and just under 1” thick, remained in place in the hallway. Boards in the other rooms had been dismantled but not yet removed from the house. The mantles, except for the one in 102, remained in place. The floors were laid with tongue-and-groove pine boards, approximately 6” wide. Although there had been some water damage to the floors, especially at each end of the house and at the doors, the flooring itself was in relatively good condition, given its age. They appear never to have been varnished or otherwise finished.
In the main staricase, treads were around 1” by 9⅜”; risers were around 1” by 9”. The newel post and balustrades were missing as were the paneled curtain walls that created the closet below.
Figure 18. Typical door details. |
|---|
Figure 19. Typical window details. |
Figure 20. Door with original paint. |
Figure 21. Looking southwest on second floor from east room (203) toward west room (202). |
All door openings were about 7’-6” high and 3’-0” wide except for the doors in the rear rooms, which were about 2’-8” wide. Most of the interior doors survived but the exterior doors, except for the door at the north end of the central hall, had been lost. The doors into 102 and 104 were missing their panels. Surviving doors had two vertical panels, molded on one side only. The panels were set into grooves in the stiles and rails which were run from 1¼”-thick stock and mortised and pegged together. The panels were missing from the door into the southwest room (102). The door at the rear of the main hall (101) may have been relocated. It was the only one of the doors with panels that were beaded along each vertical, molded edge. It was also the only door to retain a significant amount of its original painted finish.
Windows in the main part of the house appear to have been similar, although most of the sash were missing and much of the trim had been removed. Set about 31” from the floor, the windows on both floors of the main block measured about 2’-4” by 5’-6”. Casing was plain and unmolded inside and out. Each had a 9-light movable lower sash under a 9-light fixed top sash. The windows in the rear rooms measured about 2’-4” by 4’-8”, set about 32” from the floor, and had a 6-light movable lower sash under a 9-light fixed upper sash. The two windows in the half gable ends of the rear were 6/6 and measured about 2’-4” by 3’-10”.
Most door and window frames and casing remained in place but the molded back-band had been removed. The interior door and window casing was similar to that on the exterior but with the addition of a molded back-band (in two different profiles), a simple rounded window stool (in three slightly different profiles) and plain 1” by 4” apron. Most of the moldings on the interior and exterior of the house were hand-made, not machine-made. As a result there was considerable variation in dimension and profile between individual elements, although all resemble typical patterns of the period. Window stool profiles, for instance, varied considerably, with those in Room 103 being especially distinctive.
The mantles, like the molding, differed slightly from room to room with the one in the southeast room on the first floor (103) being the most elaborate. This room might have been the formal parlor and may have been the room that was finished first and used the longest. The house apparently had a detached kitchen originally but since at least the late nineteenth century, the east room (105) at the rear must have been used as a kitchen. A small, nineteenth-century wood or coal burning stove was found in this room.
Hardware, except for door hinges, was mostly missing although a few elements remained, including a surface-mounted lock on the door on the north side of Room 105 that may be antebellum in origin. Ghosts of surface-mounted rim-locks and trim, similar to that at the back door of the kitchen, were visible on several other doors.
Figure 22. Thornton House, August 1997. |
Figure 23. Thornton House, August 1997. |
|---|
![]()




















